Blick in die HUB-Bar
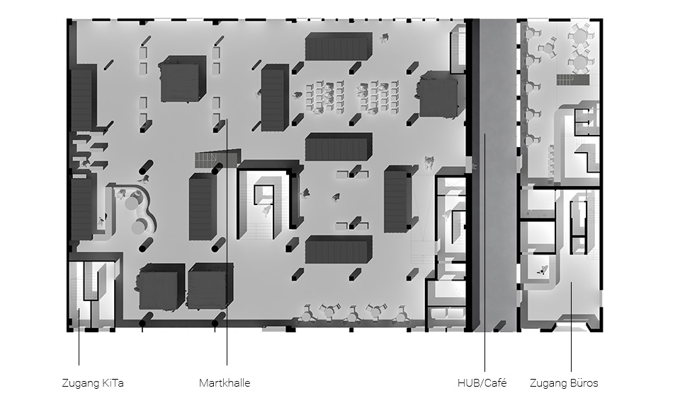
Das Ziel der Aufgabe war es eine neue Nutzung für den Schieblock, in Rotterdam, zu finden. Bisher befanden sich kleinere Büros, Lagerflächen und ein Nachtclub in den Örtlichkeiten. Gebplant wurde eine Markthalle, die als Ziel der „Luchtsingel“, der gelben Brücke, die sich durch die Stadt zieht, dient. Weiternhin entstanden ein kleiner Club, Lagerabteile, eine KiTa, Büro- und Wohneinheiten.

Lageplan

Das Projekt soll in zwei Abschnitten realisiert werden. Im Ersten werden das Erdgeschoss, mit dem HUB, dem neuen Treffpunkt der Stadt, mit Markthalle und Café, sowie der Club und die Lagerräume im UG ausgeführt. Im Zweiten werden, durch die somit erzielten Einnahmen, die KiTa, Arbeitsräume, sowie Wohnungen realisiert. Es werden sieben Wohnungen in gehobenen Standard erstellt. Die Dächer werden begrünt und als Terrassen genutzt.





