Blick auf den Neubau
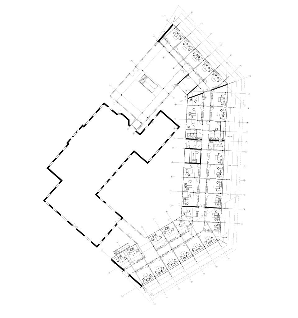
Die Aufgabe bestand darin, für den Landkreis Nordwest-Mecklenburg einen einen Kreistag zu entwerfen. Das Bürogebäude sollte ein Erweiterungsbau zum ehemaligen Katasteramt, der Hansevstadt Wismar, werden. Die Problematik war, das Gebäude möglichst effizient auf die spezielle Grundstücksform anzupassen. Der Neubau legt sich somit um drei Seiten des Bestandens. Damit weiterhin genügend Licht in die bestehenden Räumlichkeiten fällt, entstand eine geschossweise Versetzung des Entwurfes.

Lageplan
Die Fassade bildet sich in zwei Schichten aus. Die Innere ist eine Pfosten-Riegel-Fassade im 1,35m Raster. Darum spannt sich die zweite Haut aus ETFE-Folie. Somit entsteht ein Luftraum, zwischen den Fassaden, der zusätliche Dämmeigenschaften vorweist. Das Gebäude hat ein Stützenraster von 7,50m und zum Innenhof orientieren sich Balkone. Östlich vom Altbau lädt das neue Foyer zum Empfangen und Entspannen ein.





